Appartamento seminterrato di 80 mq con ingresso indipendente in via Tagliamento, Avellino.
La posizione è strategica, con tutti i servizi di prima necessità a portata di mano.
L’immobile gode di un accesso autonomo e privato, ma presenta una illuminazione naturale limitata a causa della sua posizione seminterrata.
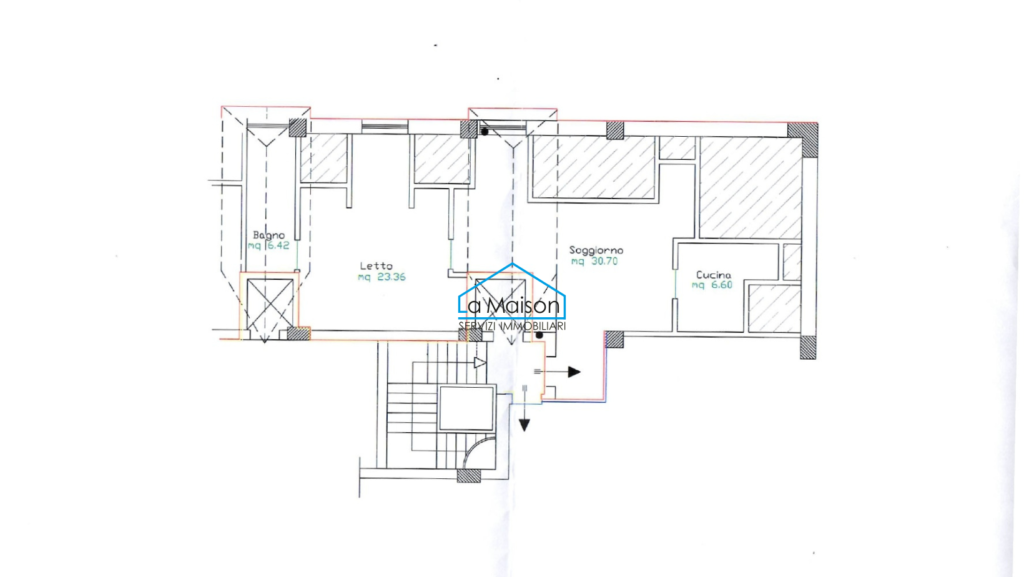
Attualmente arredato come studio, ma con potenziale di trasformazione in appartamento tradizionale. Composto da ingresso, salone, cucina, due camere da letto e bagno.
Dotato anche di balconata privata.
Il fabbricato esterno è attualmente in procinto di ristrutturazione, già finanziata dal proprietario, il che rappresenta un valore aggiunto per l’immobile.
Questa ristrutturazione porterà benefici significativi all’immobile, migliorando la sua estetica e funzionalità.
Ideale per chi cerca una soluzione abitativa versatile e adattabile alle proprie esigenze.
- Numero camere: 2
- Numero bagni: 1
- Balcone: Presente
- Piano: SEMINTERRATO
Informazioni principali
- Tipo di contratto: Vendita
- Anno di costruzione: 1963
- Località: AVELLINO (AV)
- Indirizzo: VIA TAGLIAMENTO
- Prezzo: €85.000
- Metri quadri: 80 mq.
- Stato immobile: Buono
- Classe Energetica: G
- Breve descrizione immobile: 80 MQ - 3 VANI - 1 BAGNO


















































